KAGARI

____ Design : cultureclub.design Client : KAGARI Uage : cafe / bar Interior surface : 70m2 Date of completion : 2024.12 Location : Osaka

2024⦅  Space  KAGARI
__
Text
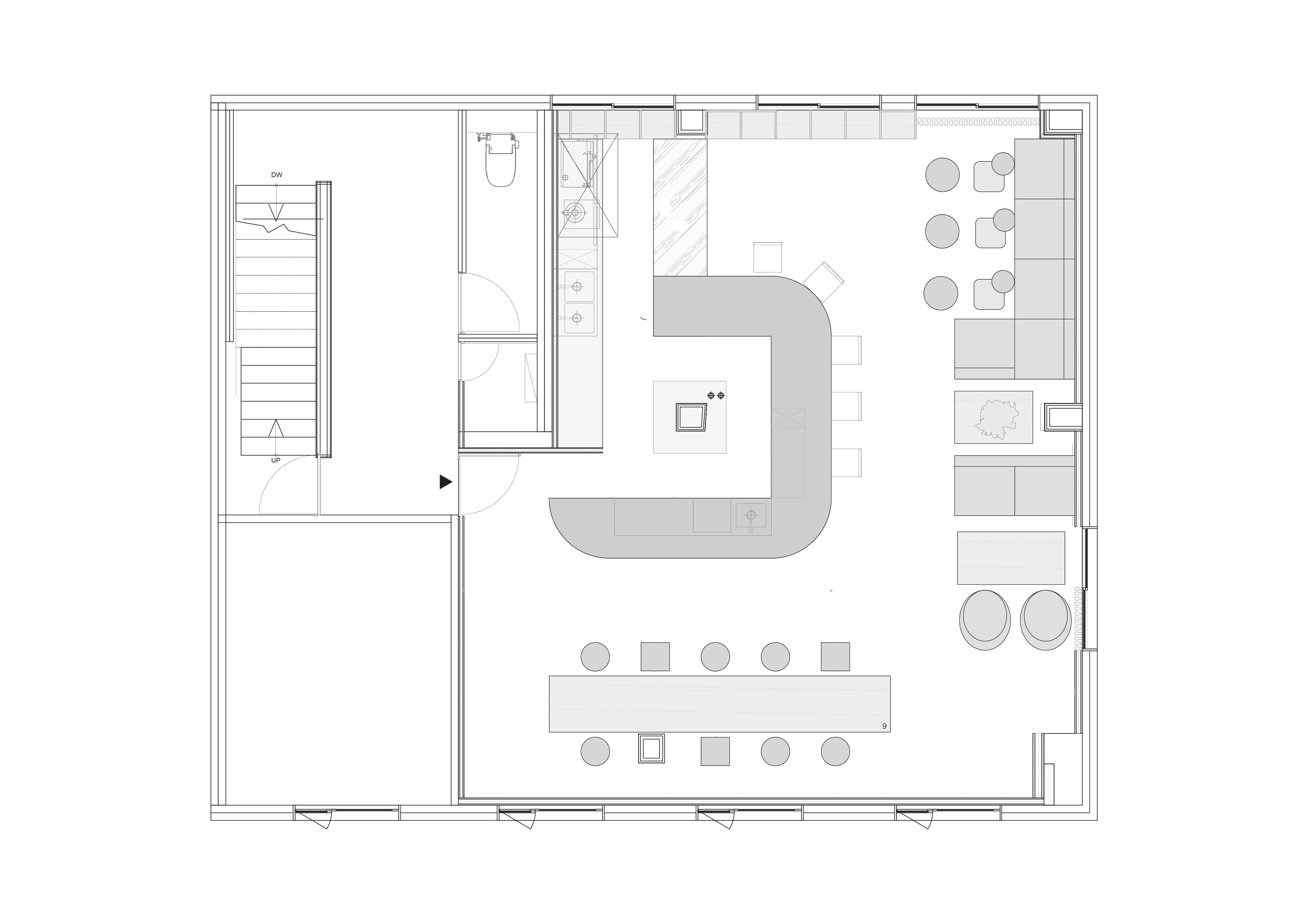
Interior design plan for a café and shisha bar. A structural column standing neither at the center nor at the edge of the unit was treated as the core, around which a circular counter was arranged, with long tables and box seating unfolding outward. The plan allows the density of relationships to shift according to distance. Translucent curtains and low color-temperature lighting create a subtle fluctuation at the center, establishing a clear spatial gravity. By enabling staff to operate from this core, behavior generates order, allowing the space to self-regulate through structure and human interaction.​​​​​​​
カフェ兼シーシャバーの内装計画。区画中央でも端でもない位置に立つ柱を核にカウンターを円環状に配置し、外側へ長テーブルやボックス席を展開。距離によって関係の密度が変わる平面とした。透過性のカーテンと低い色温度の光で中心に揺らぎをつくり、場の重心を明確にする。スタッフがその中心でオペレーションすることで、振る舞いが秩序を生み、場は自律的に整っていくような空間をつくった。
__
Plan
__
Photo
Back to Top